Closet com Banheiro Pequeno: Dicas e Ideias para Aproveitar Cada Espaço

Closet com Banheiro Pequeno: Dicas e Ideias para Aproveitar Cada Espaço

Integrar closet e banheiro em um espaço pequeno pode parecer um desafio à primeira vista. No entanto, com um bom planejamento, essa união se transforma em uma solução prática, elegante e muito funcional.

O segredo está em equilibrar organização, circulação e escolha de materiais. Quando bem pensado, o ambiente ganha fluidez e facilita a rotina, deixando tudo mais acessível no dia a dia.

Além disso, a combinação de madeira, tons claros e iluminação adequada ajuda a criar um espaço acolhedor, mesmo em áreas reduzidas.

Por que integrar closet e banheiro?

Antes de tudo, unir closet e banheiro traz praticidade. Você concentra funções em um único ambiente, o que facilita a rotina, especialmente nos momentos de preparo.

Além disso, essa integração ajuda a otimizar espaços pequenos. Em vez de dividir áreas, você cria um ambiente contínuo, com melhor aproveitamento de cada metro.

Outro ponto importante é o visual. Quando bem executado, o espaço transmite sensação de amplitude e organização, mesmo sendo compacto.

Como fazer um closet dentro do banheiro

Criar um closet dentro do banheiro exige atenção a alguns pontos essenciais. A umidade, por exemplo, precisa ser controlada para preservar roupas e móveis.

Por isso, o primeiro passo é investir em ventilação eficiente. Janelas, exaustores ou boa circulação de ar fazem toda a diferença.

Em seguida, pense na divisão do espaço. Mesmo sem paredes, você pode delimitar áreas com:

  • Painéis vazados
  • Portas de vidro
  • Diferença de revestimentos
  • Iluminação direcionada

Além disso, prefira móveis planejados. Eles aproveitam melhor cada canto e ajudam a manter o ambiente organizado.

Outro detalhe importante está na escolha dos materiais. Dê preferência a acabamentos resistentes à umidade e fáceis de limpar.

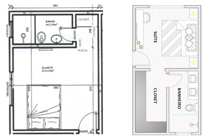
Planta de closet com banheiro pequeno

Qual o tamanho ideal de um banheiro com closet?

O tamanho ideal depende da proposta, mas alguns parâmetros ajudam a orientar o projeto.

Para um espaço funcional e confortável, o ideal é que o ambiente tenha pelo menos:

  • 3 m² a 4 m² para soluções compactas
  • 5 m² a 7 m² para maior conforto
  • Acima de 7 m² para projetos mais completos

Veja uma referência simples:

Tamanho do espaçoTipo de projetoNível de conforto
Até 4 m²Integrado compactoFuncional
5 a 7 m²Bem distribuídoConfortável
Acima de 7 m²Com divisão mais definidaAlto conforto

Mesmo em espaços menores, é possível criar um ambiente eficiente. O importante é garantir boa circulação e evitar excessos.

Materiais que funcionam melhor nesse tipo de ambiente

A escolha dos materiais influencia tanto na estética quanto na durabilidade.

Madeira ou amadeirados trazem aconchego, mas devem ter acabamento adequado para resistir à umidade. Já o branco ajuda a ampliar visualmente o espaço.

Outras boas escolhas incluem:

  • Vidro, que mantém leveza visual
  • Espelhos, que ampliam o ambiente
  • Metais em preto ou dourado, que adicionam estilo

O equilíbrio entre esses elementos cria um espaço leve, elegante e funcional.

Iluminação para ampliar e valorizar o espaço

A iluminação tem papel fundamental em ambientes pequenos. Ela pode transformar completamente a percepção do espaço.

Durante o dia, a luz natural deve ser priorizada. Já à noite, combine diferentes pontos de luz para garantir conforto e funcionalidade.

Fitas de LED em armários, iluminação indireta e luz sobre o espelho ajudam a criar um ambiente mais agradável.

Além disso, tons de luz mais quentes deixam o espaço mais acolhedor, especialmente quando combinados com madeira.

Ideias para aproveitar melhor cada espaço

Closet com banheiro pequeno integrado que otimiza espaço e traz praticidade no dia a dia

Closet com banheiro pequeno integrado que otimiza espaço e traz praticidade no dia a dia

Ideias de closet com banheiro pequeno planejado para ambientes compactos e funcionais

Ideias de closet com banheiro pequeno planejado para ambientes compactos e funcionais

Closet pequeno com banheiro moderno que combina organização e elegância no mesmo espaço

Closet pequeno com banheiro moderno que combina organização e elegância no mesmo espaço

Closet com banheiro pequeno e acabamento em madeira que traz aconchego ao ambiente

Projetos de closet com banheiro pequeno integrado que valorizam cada metro disponível

Projetos de closet com banheiro pequeno integrado que valorizam cada metro disponível

Closet com banheiro pequeno e acabamento em madeira que traz aconchego ao ambiente

Inspirações de closet com banheiro pequeno e design moderno para espaços reduzidos

Inspirações de closet com banheiro pequeno e design moderno para espaços reduzidos

Closet com banheiro pequeno e portas de vidro que ampliam a sensação de espaço

Closet com banheiro pequeno e portas de vidro que ampliam a sensação de espaço

Modelos de closet com banheiro pequeno planejado com armários funcionais e elegantes

Modelos de closet com banheiro pequeno planejado com armários funcionais e elegantes

Como manter o ambiente organizado no dia a dia

Em espaços integrados, a organização faz toda a diferença. Como tudo fica visível, manter o equilíbrio visual ajuda a preservar a sensação de conforto.

Prefira guardar apenas o essencial e evite acúmulo de objetos. Organizadores internos, nichos e divisórias facilitam muito a rotina.

Além disso, manter uma paleta de cores coerente contribui para um ambiente mais leve e harmonioso.

Veja mais Banheiro Amadeirado com Branco: Ideias Lindas e Aconchegantes.

Um ambiente pequeno, mas cheio de possibilidades

O closet com banheiro pequeno mostra que tamanho não limita conforto. Com boas escolhas, é possível criar um espaço funcional, bonito e acolhedor.

A integração, quando bem planejada, facilita o dia a dia e valoriza o ambiente. Cada detalhe, desde a iluminação até os materiais, contribui para um resultado mais equilibrado.

No fim, o mais importante é criar um espaço que funcione para a sua rotina e traga uma sensação real de conforto e praticidade.

Veja também: Banheiro Rústico Simples e Lindos: 12 Modelos.

Rolar para cima